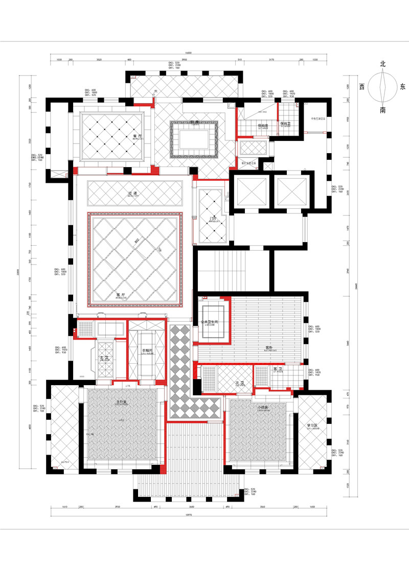
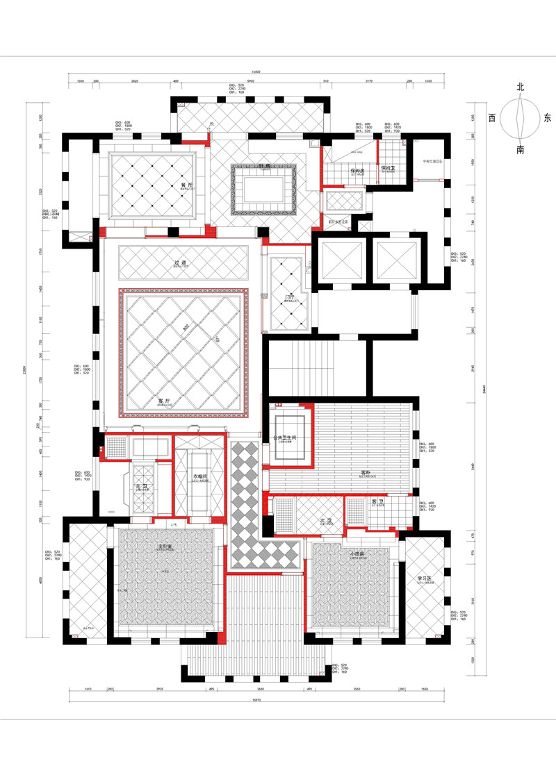
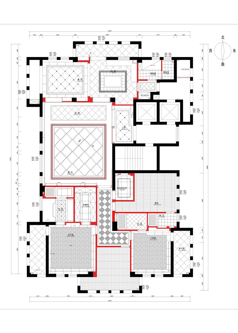
case工程案例

简欧

企业小程序
企业公众号